“Energy Building, Marbella” — Málaga
«Energy Building, Marbella» se trata de un proyecto de Ideas Conceptuales para una Nueva Obra en Marbella, concebido como un manifiesto de la arquitectura urbana de vanguardia. El diseño se articula en torno al objetivo de alcanzar la autonomía energética, posicionándose como un Edificio de Energía Cero (NZEB). Para ello, se integra un sistema híbrido de generación in-situ compuesto por aerogeneradores de eje vertical y paneles fotovoltaicos de alto rendimiento en la cubierta. Esta estrategia se complementa con un avanzado sistema de depuración y reutilización de aguas grises, minimizando la huella hídrica y estableciendo un nuevo paradigma de sostenibilidad residencial en la Costa del Sol.
+ Año: 2025
+ Ubicación: Av. Mercado, 2A, 29601 Marbella, Málaga
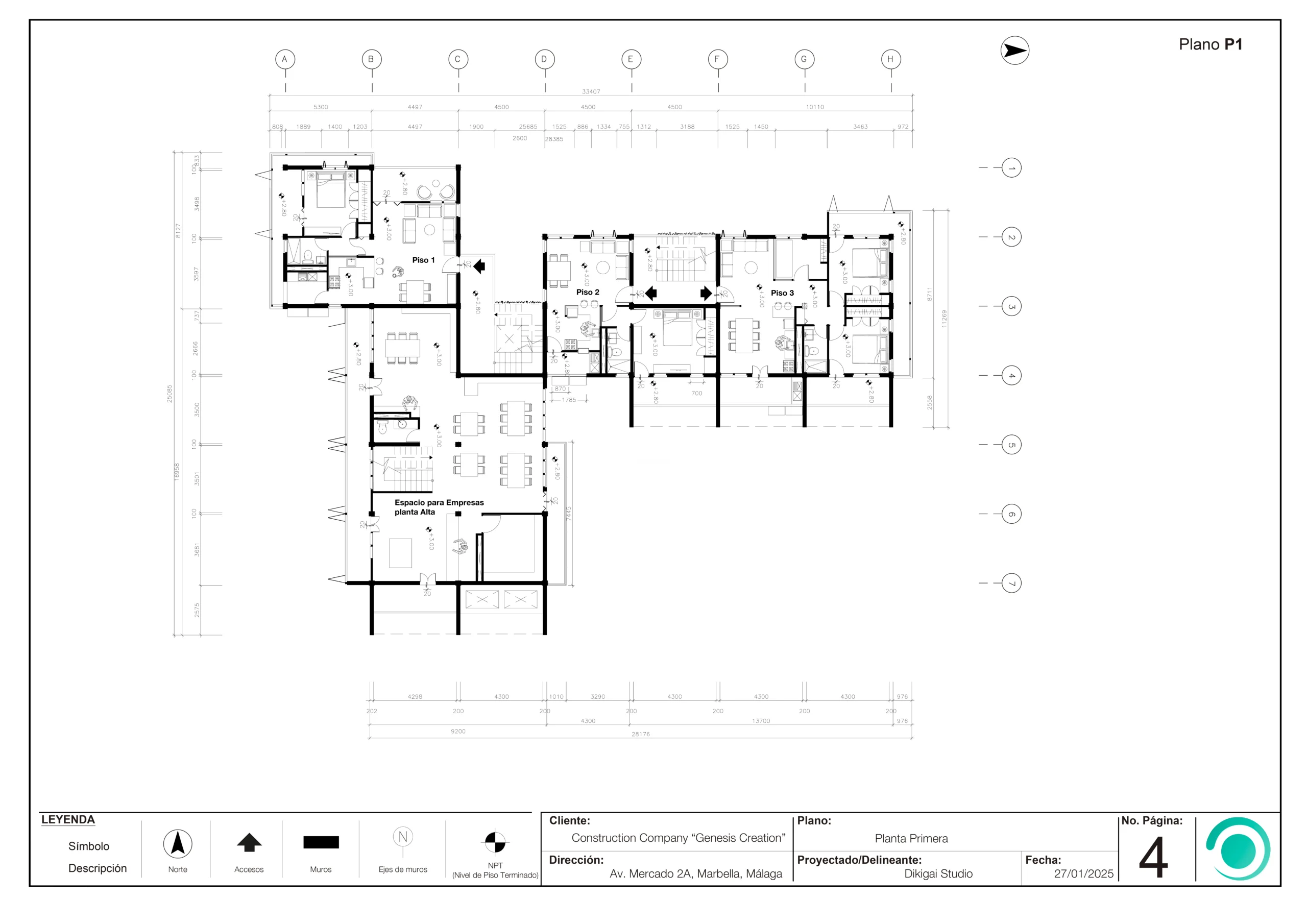
+ Área (m²):
– Viviendas: 1.641,81 m²
– Servicios: 427,30 m²
– Accesos Verticales : 214,15 m²
– Aparcamiento Soterrado : 450,00 m²
+ Área Total (sin aparcamiento): 2283,26 m²
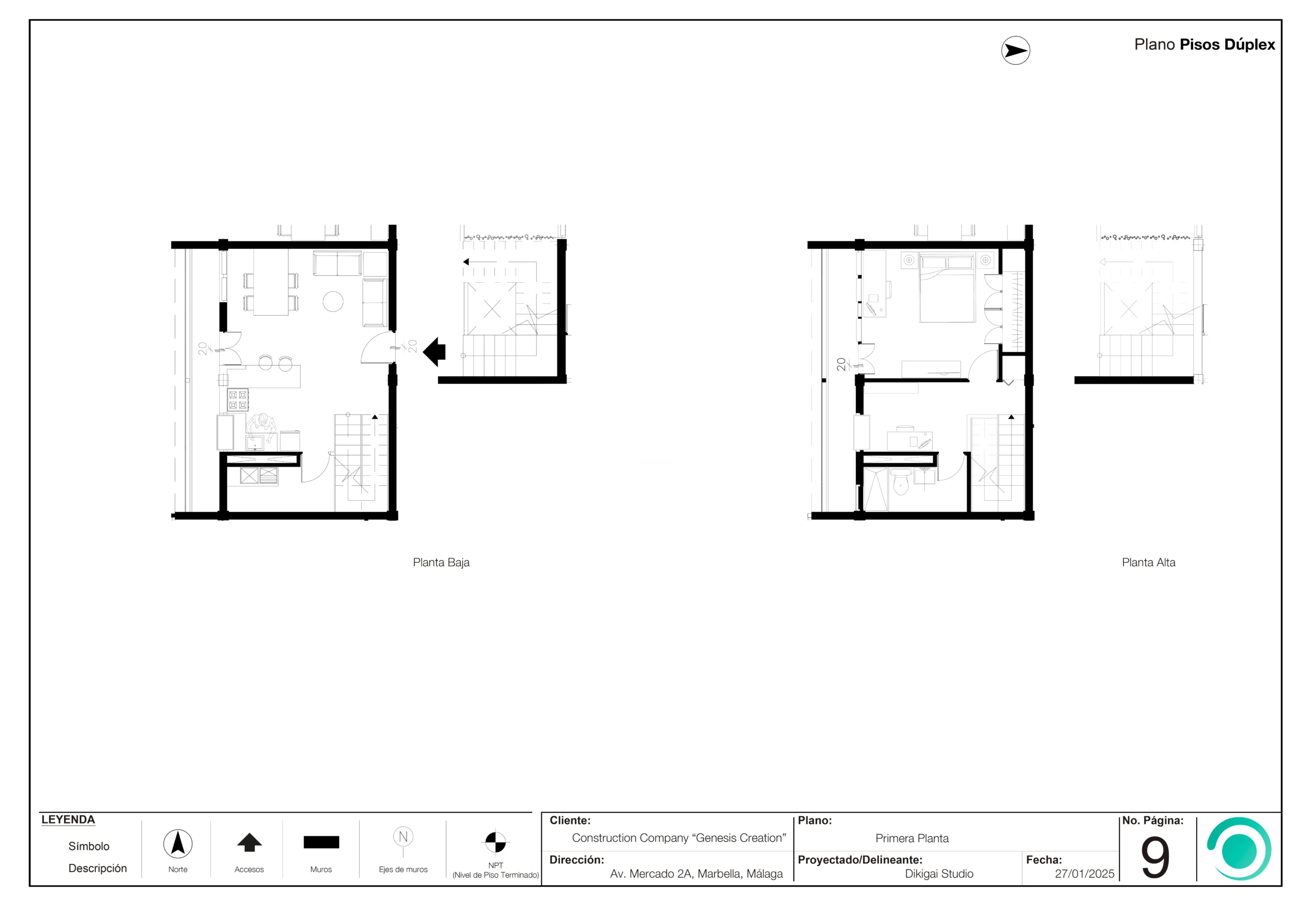
El volumen del edificio se esculpe a partir del máximo aprovechamiento normativo para integrarse armónicamente en el tejido urbano y, a la vez, optimizar la captación de recursos naturales. La fachada es un elemento activo y bioclimático; una doble piel inteligente en las orientaciones este y oeste, con paneles móviles, proporciona auto-sombreado para mitigar la ganancia térmica. Estructuralmente, se emplea un módulo espacial optimizado de 4.50m x 3.60m con apoyos aislados que garantiza la máxima flexibilidad programática. La planta baja se destina a servicios de alta demanda en la zona, mientras que los niveles superiores albergan 15 residencias de diversas tipologías, incluyendo dúplex, que coronan el edificio para maximizar la rugosidad volumétrica y potenciar el flujo del viento.
Referencias en Dikigai Gallery
Servicios en Dikigai Studio
Contáctanos
Con gusto te guiaremos para encontrar una solución a la medida de tu proyecto.
Lunes a Viernes: 8:00 – 21:00
Sábado: 9:00 – 15:00
¡Da el primer paso hacia un diseño único con Dikigai Studio!
































