«Reforma MU 19» — Madrid
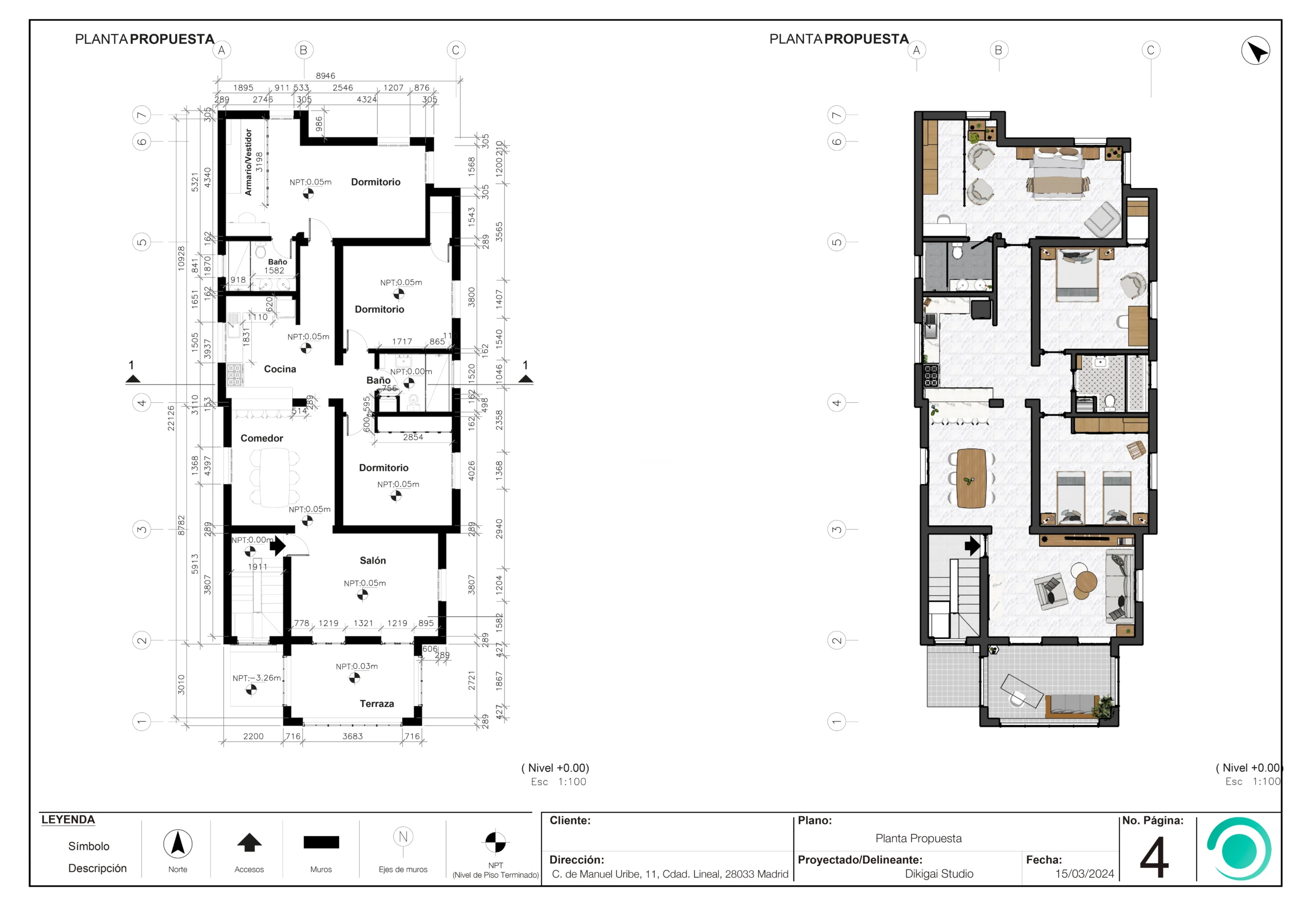
El proyecto de reforma integral «MU19» en Madrid, aborda la transformación de una vivienda de 115 m² cuya distribución original, obsoleta y altamente compartimentada, limitaba críticamente la penetración de luz natural y la funcionalidad contemporánea. El concepto arquitectónico central fue la creación de un continuo espacial para maximizar la eficiencia espacial y la experiencia de usuario. La solución estructural clave implicó la demolición selectiva de muros de carga y particiones para fusionar las zonas de día en un único espacio diáfano y multifuncional. Esta intervención se materializa mediante el uso de carpintería de madera a medida, que aporta calidez y cohesión, y un pavimento porcelánico de gran formato que garantiza una continuidad visual ininterrumpida, demostrando una clara innovación en la reconfiguración de espacios residenciales.
+ Año: 2024
+ Ubicación: C. de Manuel Uribe, 19, Cdad. Lineal, Madrid
+ Área: 115 m²
El resultado es un ambiente interior que prioriza la luminosidad natural y la fluidez circulatoria, predefiniendo por completo la habitabilidad de la vivienda. La nueva configuración, que incorpora sutiles elementos de diseño biofílico, genera una atmósfera serena y potencia la conexión visual entre los distintos usos. El proyecto culmina en una estética depurada y atemporal que no sacrifica el rendimiento funcional, logrando una solución de alta sostenibilidad y confort. Se demuestra así cómo una intervención estratégica, enfocada en la optimización del layout y la materialidad, puede transformar radicalmente la percepción y el uso del espacio doméstico.
Referencias en Dikigai Gallery
Servicios en Dikigai Studio
Contáctanos
Con gusto te guiaremos para encontrar una solución a la medida de tu proyecto.
Lunes a Viernes: 8:00 – 21:00
Sábado: 9:00 – 15:00
¡Da el primer paso hacia un diseño único con Dikigai Studio!



























